A vertical transformation

Tufts University School of Dental Medicine

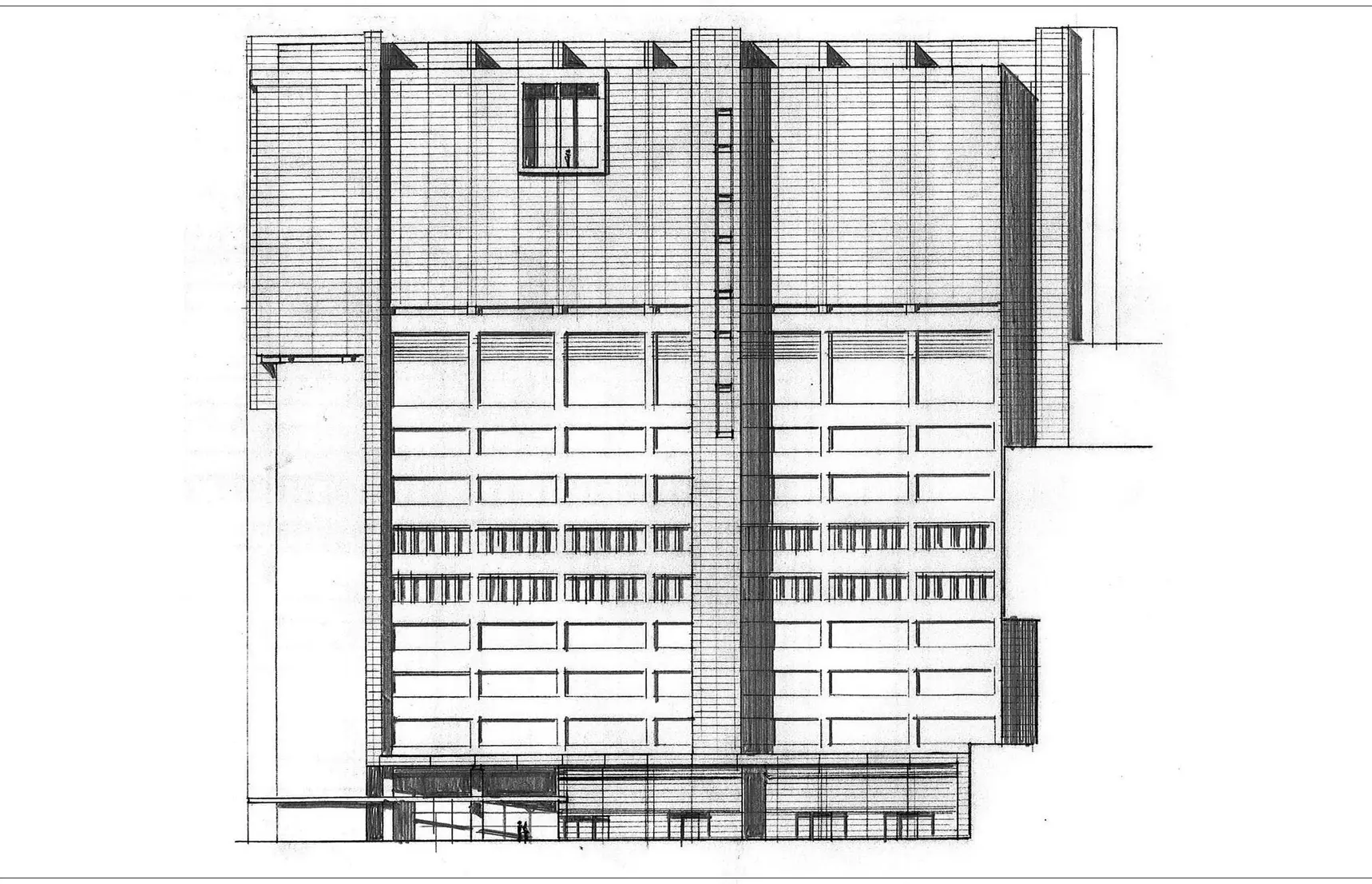
ARC assisted longtime partner Tufts University on a five-story vertical expansion of a 1972 building, providing expanded educational facilities and establishing a new gateway to Tufts Health Sciences’ campus in downtown Boston. Featuring two new clinical patient floors, an enlarged simulation lab, teaching facilities, a continuing education conference center, and administrative offices, the expansion has reinvigorated one of the nation’s preeminent Schools of Dental Medicine.
Presentation Mode
Image
Downtown

High and tight

Projects located in historic downtown Boston present an array of logistical challenges. A five-story vertical addition atop an existing ten story building was no exception - especially while the existing building remained fully occupied and functional. Using structural reinforcements and significant modifications to the existing building infrastructure, ARC ensured the project could proceed on schedule with minimal disruption to the dental clinics inside.

Image
kk

Keeping up appearances

While the logistics of the existing space presented one set of challenges, the building’s 1970s Brutalist aesthetic presented others. Tufts and ARC embraced the opportunity to rebrand the school by mediating the Brutalist appearance of the original concrete precast facade—ultimately incorporating a sleek glass and aluminum exterior that makes the building a beacon and a modern gateway to the Tufts Health Sciences campus.

Image
v2
Image
Red Staircase at Tufts

The extension of an enclosed fire stair incorporates a sleek glass and aluminum curtain-wall system. Visible from the street, the glass encloses an orange metal-clad staircase. 

Image
Dental space

Serving Boston with a smile

With the aesthetic and functional improvements to its facilities, the School of Dental Medicine is positioned to enter a new era. Poised to increase enrollment and hire more world-class faculty, the school will also continue to deliver on its long tradition of community service— benefiting more than 18,000 patients annually from the City of Boston and across greater New England.

Image
Simulations at Tufts

108 stations in the cutting-edge simulation lab, providing anatomically correct mannequin heads, mirror conditions in a real operatory.

Image
Dental space 2

With sprawling views of Boston, the new post-doctorate clinic design provides a revitalized learning environment for a new generation of students. The open floor plan means that postgrads are assigned their own operatories for the academic year, allowing them to set up shop however they see fit.

Image
v2

“On-stage” public treatment areas on each clinic floor are separated from “off-stage” private areas, where professors conduct seminars and consult with students.

Image
v3
Image
AR03100109
Image
v4
Image
Clinic reception areas at Tufts

Clinic reception areas provide a welcoming and refreshing setting for thousands of dental patients annually.

Image
v5

A new administrative floor includes admissions and student affairs offices, as well as gathering spaces for students and faculty to meet formally and casually.

Image
v6
Image
777
Image
v8
Image
Lab

As a facility that is dedicated to high standards of teaching and care, research plays a major role.

Image
Internal stairs at Tufts

Internal stairs provide important vertical connection between floors encouraging interaction between departments.

Image
v99
Image
vm
Image
vv
Image
Option-06-W-01 cropped
Image
Option-06-N-01 cropped
Image
Option-06-E-01 cropped

Photography: Warren Patterson Photography

Project
Vertical Expansion at Tufts University School of Dental Medicine
Location
Boston, MA
Size
105,000 SF
Awards
2012 Merit Award for Design Excellence, American Institute of Architects (AIA) New England
2010 Honor Awards Healthcare Facilities Design, Boston Society of Architects (BSA)
2010 Best Education Design, International Interior Design Association (IIDA) New England
2010 Boston Chapter’s Best Practice Award, International Facilities Management Association (IFMA)
2010 The Building of America Award
LEED Silver

A vertical transformation

Tufts University School of Dental Medicine

Project
Vertical Expansion at Tufts University School of Dental Medicine
Location
Boston, MA
Size
105,000 SF
Awards
2012 Merit Award for Design Excellence, American Institute of Architects (AIA) New England
2010 Honor Awards Healthcare Facilities Design, Boston Society of Architects (BSA)
2010 Best Education Design, International Interior Design Association (IIDA) New England
2010 Boston Chapter’s Best Practice Award, International Facilities Management Association (IFMA)
2010 The Building of America Award
LEED Silver
ARC assisted longtime partner Tufts University on a five-story vertical expansion of a 1972 building, providing expanded educational facilities and establishing a new gateway to Tufts Health Sciences’ campus in downtown Boston. Featuring two new clinical patient floors, an enlarged simulation lab, teaching facilities, a continuing education conference center, and administrative offices, the expansion has reinvigorated one of the nation’s preeminent Schools of Dental Medicine.
Presentation Mode
Image
Downtown

High and tight

Projects located in historic downtown Boston present an array of logistical challenges. A five-story vertical addition atop an existing ten story building was no exception - especially while the existing building remained fully occupied and functional. Using structural reinforcements and significant modifications to the existing building infrastructure, ARC ensured the project could proceed on schedule with minimal disruption to the dental clinics inside.

Image
kk

Keeping up appearances

While the logistics of the existing space presented one set of challenges, the building’s 1970s Brutalist aesthetic presented others. Tufts and ARC embraced the opportunity to rebrand the school by mediating the Brutalist appearance of the original concrete precast facade—ultimately incorporating a sleek glass and aluminum exterior that makes the building a beacon and a modern gateway to the Tufts Health Sciences campus.

Image
v2
Image
Red Staircase at Tufts

The extension of an enclosed fire stair incorporates a sleek glass and aluminum curtain-wall system. Visible from the street, the glass encloses an orange metal-clad staircase. 

Image
Dental space

Serving Boston with a smile

With the aesthetic and functional improvements to its facilities, the School of Dental Medicine is positioned to enter a new era. Poised to increase enrollment and hire more world-class faculty, the school will also continue to deliver on its long tradition of community service— benefiting more than 18,000 patients annually from the City of Boston and across greater New England.

Image
Simulations at Tufts

108 stations in the cutting-edge simulation lab, providing anatomically correct mannequin heads, mirror conditions in a real operatory.

Image
Dental space 2

With sprawling views of Boston, the new post-doctorate clinic design provides a revitalized learning environment for a new generation of students. The open floor plan means that postgrads are assigned their own operatories for the academic year, allowing them to set up shop however they see fit.

Image
v2

“On-stage” public treatment areas on each clinic floor are separated from “off-stage” private areas, where professors conduct seminars and consult with students.

Image
v3
Image
AR03100109
Image
v4
Image
Clinic reception areas at Tufts

Clinic reception areas provide a welcoming and refreshing setting for thousands of dental patients annually.

Image
v5

A new administrative floor includes admissions and student affairs offices, as well as gathering spaces for students and faculty to meet formally and casually.

Image
v6
Image
777
Image
v8
Image
Lab

As a facility that is dedicated to high standards of teaching and care, research plays a major role.

Image
Internal stairs at Tufts

Internal stairs provide important vertical connection between floors encouraging interaction between departments.

Image
v99
Image
vm
Image
vv
Image
Option-06-W-01 cropped
Image
Option-06-N-01 cropped
Image
Option-06-E-01 cropped

Photography: Warren Patterson Photography

A vertical transformation / Tufts University School of Dental Medicine
v2
v4
v99
Red Staircase at Tufts
Clinic reception areas at Tufts
vm
Dental space
v5
vv
Simulations at Tufts
v6
Dental space 2
777
v2
v8
Downtown
v3
Lab
kk
AR03100109
Internal stairs at Tufts