Windows to innovation

Johnson & Wales University

ARC and Johnson & Wales University partnered to create the John J. Bowen Center for Science and Innovation. A multidisciplinary facility that serves as a hub for a wide range of science, technology, and engineering programs, it also celebrates and strengthens the deep connection between the institution and the city it calls home.
Presentation Mode

My heart actually skipped a beat. This building just hit it out of the park for us.

Marie Bernardo-Sousa, President, Providence Campus, Johnson & Wales University

Image
Makers Space

Share and share alike

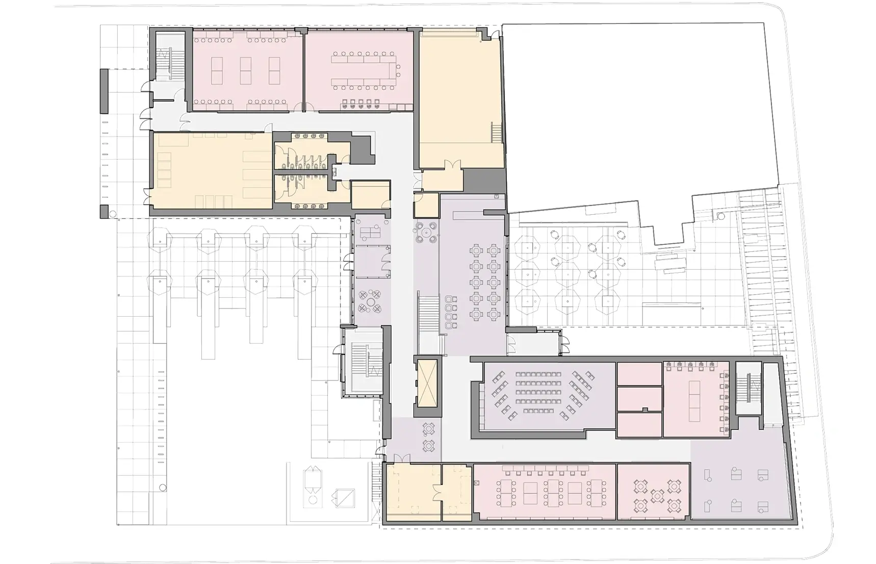
Modern innovation facilities are often highly specialized. In this case, our team saw the opportunity for a more versatile approach: reducing four expensive, specialized lab spaces into two high-functioning, more flexible-use spaces. One accommodates labs for both chemistry and anatomy, and the other a physics lab and biology lab. Without these creative solutions, the project would likely have run up against both space and budget constraints. Instead, it went on to exceed all expectations. 

Image
Labs
Image
jwu

Fostering connection and collaboration

These multi-use spaces have produced benefits that extend far beyond space and cost efficiency. Ultimately, they’ve helped bring together many of Johnson & Wales’ programs. The building’s two wings are connected by a central hub that is equal parts collaboration space, lobby, and cafe. Outside, two new spaces extend the concept of connection: a new academic quadrangle and an inviting pocket park that engages the adjacent public street.

Image
jwu2
Image
jwu4
Image
jwu1
Image
jwu3
Image
The Center’s Front door used to be an on ramp to the now-removed interstate.

Building a new beginning

In addition to creating connective tissue on campus, the Bowen Center honors Johnson & Wales’ place within the urban fabric of Providence. The first new building on a vacant swath of land formerly occupied by an elevated highway, the project took on huge significance to both JWU and the Providence community. ARC produced a master plan to future proof the building and support later expansion. The Center sets the university up for future success and will serve as an anchor for Providence’s new Innovation District. 

Innovation on display was accomplished by designing “storefronts” into active and dynamic spaces that are visible to the street.

Frank Tweedie Dean, School of Engineering & Design Johnson & Wales University

Image
test

The trellis and pocket park engage the pubic in a welcoming and way, creating a semi-public semi-private space that belongs to everyone.

Its really neat to see what's going on in a Biology lab when I am on my way to a design class.

Ray Nuñez, Student, Johnson and Wales University

Image
Maker Space

 

 

Image
Building Materials

The contemporary materials of the building make both physical and abstract ties to the existing fabric of the city while suggesting a quality of architecture for the future of this site.

Image
Detail Shot
Image
Gallery

Lobby gallery space puts student art and innovation on display.

Image
Frame 2 - Courtyard
Image
gklf
Image
sdg
Image
mk

Photography: John Horner Photography

Project
John J. Bowen Center for Science and Innovation at Johnson & Wales University
Location
Providence, RI
Size
71,000 SF

Windows to innovation

Johnson & Wales University

Project
John J. Bowen Center for Science and Innovation at Johnson & Wales University
Location
Providence, RI
Size
71,000 SF
ARC and Johnson & Wales University partnered to create the John J. Bowen Center for Science and Innovation. A multidisciplinary facility that serves as a hub for a wide range of science, technology, and engineering programs, it also celebrates and strengthens the deep connection between the institution and the city it calls home.
Presentation Mode

My heart actually skipped a beat. This building just hit it out of the park for us.

Marie Bernardo-Sousa, President, Providence Campus, Johnson & Wales University

Image
Makers Space

Share and share alike

Modern innovation facilities are often highly specialized. In this case, our team saw the opportunity for a more versatile approach: reducing four expensive, specialized lab spaces into two high-functioning, more flexible-use spaces. One accommodates labs for both chemistry and anatomy, and the other a physics lab and biology lab. Without these creative solutions, the project would likely have run up against both space and budget constraints. Instead, it went on to exceed all expectations. 

Image
Labs
Image
jwu

Fostering connection and collaboration

These multi-use spaces have produced benefits that extend far beyond space and cost efficiency. Ultimately, they’ve helped bring together many of Johnson & Wales’ programs. The building’s two wings are connected by a central hub that is equal parts collaboration space, lobby, and cafe. Outside, two new spaces extend the concept of connection: a new academic quadrangle and an inviting pocket park that engages the adjacent public street.

Image
jwu2
Image
jwu4
Image
jwu1
Image
jwu3
Image
The Center’s Front door used to be an on ramp to the now-removed interstate.

Building a new beginning

In addition to creating connective tissue on campus, the Bowen Center honors Johnson & Wales’ place within the urban fabric of Providence. The first new building on a vacant swath of land formerly occupied by an elevated highway, the project took on huge significance to both JWU and the Providence community. ARC produced a master plan to future proof the building and support later expansion. The Center sets the university up for future success and will serve as an anchor for Providence’s new Innovation District. 

Innovation on display was accomplished by designing “storefronts” into active and dynamic spaces that are visible to the street.

Frank Tweedie Dean, School of Engineering & Design Johnson & Wales University

Image
test

The trellis and pocket park engage the pubic in a welcoming and way, creating a semi-public semi-private space that belongs to everyone.

Its really neat to see what's going on in a Biology lab when I am on my way to a design class.

Ray Nuñez, Student, Johnson and Wales University

Image
Maker Space

 

 

Image
Building Materials

The contemporary materials of the building make both physical and abstract ties to the existing fabric of the city while suggesting a quality of architecture for the future of this site.

Image
Detail Shot
Image
Gallery

Lobby gallery space puts student art and innovation on display.

Image
Frame 2 - Courtyard
Image
gklf
Image
sdg
Image
mk

Photography: John Horner Photography

Windows to innovation / Johnson & Wales University
jwu2
Detail Shot
jwu4
Gallery
jwu1
Frame 2 - Courtyard
jwu3
The Center’s Front door used to be an on ramp to the now-removed interstate.
Makers Space
test
Labs
Maker Space
jwu
Building Materials