Invitation into the arts

The Peddie School

The Peddie School’s expanded arts complex is an exciting reflection of the school’s vibrant arts program. It features a new state-of-the-art music hall, larger exhibition spaces, additional music and practice rooms, and a renovated arts studio. The new arts center exemplifies The Peddie School's commitment to providing students with a holistic educational experience.
Presentation Mode
Image
mb20221020_arc_img_8299
Image
mb20221020_arc_img_839

It has been surreal to play in the Ding Music Hall. Performing in this space has been transformative for me as a musician.

Leena, Student '25 (Music)
Image
sketch - section colored
Image
mb20221020_arc_img_8339

Top to Bottom Connectivity

The design team took advantage of transparencies to link program areas, with a custom ceiling design in the music hall that enhances the acoustical experience of the space while also creating visual connections throughout the building and surrounding campus.

Image
mb20221020_arc_img_9413
Image
mb20221020_arc_img_9338

It is a joy to walk through the hallways and sense the creative energy produced by our students and teachers. The sense of satisfaction that I experienced upon introducing this year’s orchestra students to the space and observing them break out into spontaneous applause and cheers was one that I will never forget.

Alan Michaels, Arts Department Chair
Image
mb20221020_arc_img_4964
Image
mb20221020_arc_img_5042

A Beacon for the Arts

A key goal of the design was to create an exterior expression that would serve as a lantern, drawing the school community from every part of campus into the new space.

Image
mb20221020_arc_img_5028
Image
mb20230221_peddie_img_0404

It has been a pleasure to work with ARC on this exciting and challenging project. The new arts facility has been inspirational to our school community, and we are thrilled to see the myriad ways it has enhanced our arts programs.

Sanjeev Puri, Assistant Head for Finance and Operations

Image
mb20221020_arc_img_8822

The expansion creates opportunities within the existing building to upgrade and enhance arts classrooms and studio spaces.

Image
mb20221020_arc_img_8940
Image
mb20230221_peddie_img_9590

Gathering Creativity

The new gallery spaces and open, light-filled lobby provide a unifying theme for displaying student artwork, encouraging community gathering, and fostering creativity on campus.

Image
mb20221020_arc_img_9722
Image
mb20221020_arc_img_0120_1

Working on The Peddie School's Arts Center was a rewarding process with the faculty and staff. Together, we synchronized the concept with the criteria and tuned the design by drawing through the possibilities.

Shreya Shah, Designer, ARC
Image
sketch - plan
Image
mb20221020_arc_img_0018
Image
mb20221020_arc_img_9781

Photography: Magda Biernat Photography

Image
Peddie Arts_Orch Section
Image
peddie main level
Image
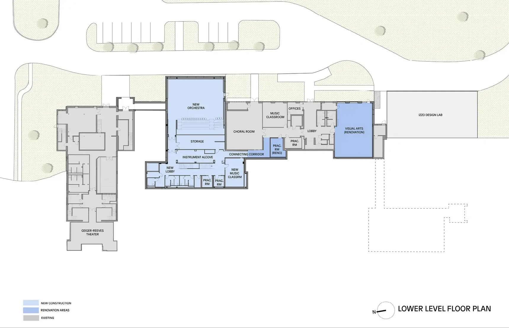
peddie lower level
Image
sketch-section
Project
Arts Expansion at The Peddie School
Location
Hightstown, New Jersey
Size
17,000 SF
Awards
American Architecture Awards 2024
AIA-NJ 2023 Design Competition

Invitation into the arts

The Peddie School

Project
Arts Expansion at The Peddie School
Location
Hightstown, New Jersey
Size
17,000 SF
Awards
American Architecture Awards 2024
AIA-NJ 2023 Design Competition
The Peddie School’s expanded arts complex is an exciting reflection of the school’s vibrant arts program. It features a new state-of-the-art music hall, larger exhibition spaces, additional music and practice rooms, and a renovated arts studio. The new arts center exemplifies The Peddie School's commitment to providing students with a holistic educational experience.
Presentation Mode
Image
mb20221020_arc_img_8299
Image
mb20221020_arc_img_839

It has been surreal to play in the Ding Music Hall. Performing in this space has been transformative for me as a musician.

Leena, Student '25 (Music)
Image
sketch - section colored
Image
mb20221020_arc_img_8339

Top to Bottom Connectivity

The design team took advantage of transparencies to link program areas, with a custom ceiling design in the music hall that enhances the acoustical experience of the space while also creating visual connections throughout the building and surrounding campus.

Image
mb20221020_arc_img_9413
Image
mb20221020_arc_img_9338

It is a joy to walk through the hallways and sense the creative energy produced by our students and teachers. The sense of satisfaction that I experienced upon introducing this year’s orchestra students to the space and observing them break out into spontaneous applause and cheers was one that I will never forget.

Alan Michaels, Arts Department Chair
Image
mb20221020_arc_img_4964
Image
mb20221020_arc_img_5042

A Beacon for the Arts

A key goal of the design was to create an exterior expression that would serve as a lantern, drawing the school community from every part of campus into the new space.

Image
mb20221020_arc_img_5028
Image
mb20230221_peddie_img_0404

It has been a pleasure to work with ARC on this exciting and challenging project. The new arts facility has been inspirational to our school community, and we are thrilled to see the myriad ways it has enhanced our arts programs.

Sanjeev Puri, Assistant Head for Finance and Operations

Image
mb20221020_arc_img_8822

The expansion creates opportunities within the existing building to upgrade and enhance arts classrooms and studio spaces.

Image
mb20221020_arc_img_8940
Image
mb20230221_peddie_img_9590

Gathering Creativity

The new gallery spaces and open, light-filled lobby provide a unifying theme for displaying student artwork, encouraging community gathering, and fostering creativity on campus.

Image
mb20221020_arc_img_9722
Image
mb20221020_arc_img_0120_1

Working on The Peddie School's Arts Center was a rewarding process with the faculty and staff. Together, we synchronized the concept with the criteria and tuned the design by drawing through the possibilities.

Shreya Shah, Designer, ARC
Image
sketch - plan
Image
mb20221020_arc_img_0018
Image
mb20221020_arc_img_9781

Photography: Magda Biernat Photography

Image
Peddie Arts_Orch Section
Image
peddie main level
Image
peddie lower level
Image
sketch-section
Invitation into the arts / The Peddie School
mb20230221_peddie_img_0404
mb20221020_arc_img_9781
sketch - section colored
mb20221020_arc_img_8822
mb20221020_arc_img_8339
mb20221020_arc_img_8940
mb20221020_arc_img_9413
mb20230221_peddie_img_9590
mb20221020_arc_img_9338
mb20221020_arc_img_9722
mb20221020_arc_img_4964
mb20221020_arc_img_0120_1
mb20221020_arc_img_8299
mb20221020_arc_img_5042
sketch - plan
mb20221020_arc_img_839
mb20221020_arc_img_5028
mb20221020_arc_img_0018