Create Space | For Evolving Identity.

Inside ARC from
Image
Footsteps

It’s a New Year, and with it comes a transformative milestone for ARC: a move to a new office space! 

At ARC, we’re dedicated to creating bold, visionary spaces that inspire, endure, and challenge the status quo. This philosophy isn’t just for our clients; it’s a commitment to ourselves. As we embark on designing our new home, we’re embracing the opportunity to reflect on our identity and envision a workspace that aligns with our aspirations for the future.

Starting with Insight

Last year, a team of ARCers set out to find a space that better fits our evolving culture and design sensibilities. The process began with an essential question: What do we need to thrive? We analyzed commuting patterns to ensure accessibility for our team, recognizing that the majority rely on Boston’s public transit. Proximity to key transit lines became a non-negotiable priority.

Map of Employee Living Locations
Image
Employee Map

A Decade of Growth—and Change

For the past 10 years, ARC has called 501 Boylston Street home. During that time, we’ve maintained a team of 50-60 people, even though our office was designed for up to 80. This mismatch left us spread out—physically distanced by building corners and layout quirks—which isn’t ideal for a collaborative design firm. Additionally, with rising city rents, we saw an opportunity to rethink our approach to space efficiency and allocate resources toward enhancing employee well-being, creative collaboration, and client experiences. 

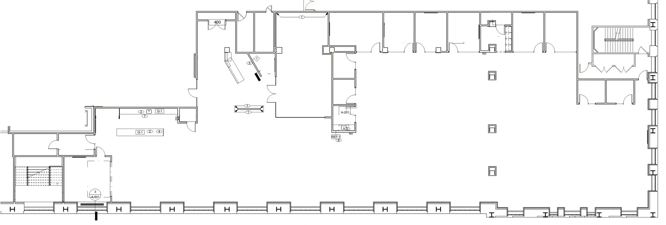
Current ARC Office Suite
Image
Current ARC Office Suite

The Search for Something More

We explored neighborhoods across Boston—the Seaport District, the Financial District, the South End, Downtown Crossing, and Back Bay—visiting over a dozen potential spaces. Each site was scrutinized for its layout, square footage, required renovations, building amenities, and transportation access. Our goal wasn’t just to find a place to work but to uncover a space that could inspire how we work.

Map of Office Search
Image
Office Search Map

In the end, our choice became clear. ARC’s next chapter will unfold in the same building we’ve grown to love—just across the hall from our current suite on the fourth floor. It’s a move that offers the best of both worlds: continuity and renewal.

501 Boylston St Building
Image
501 Boylston Building

Looking Ahead

While the address may not change, our new office will be a bold reimagining of how space can serve our mission. The design process, now underway, reflects our values—prioritizing connection, creativity, and a vision for the future. This move is more than a physical transition; it’s an opportunity to challenge our workstyles today to aspire to something greater tomorrow.

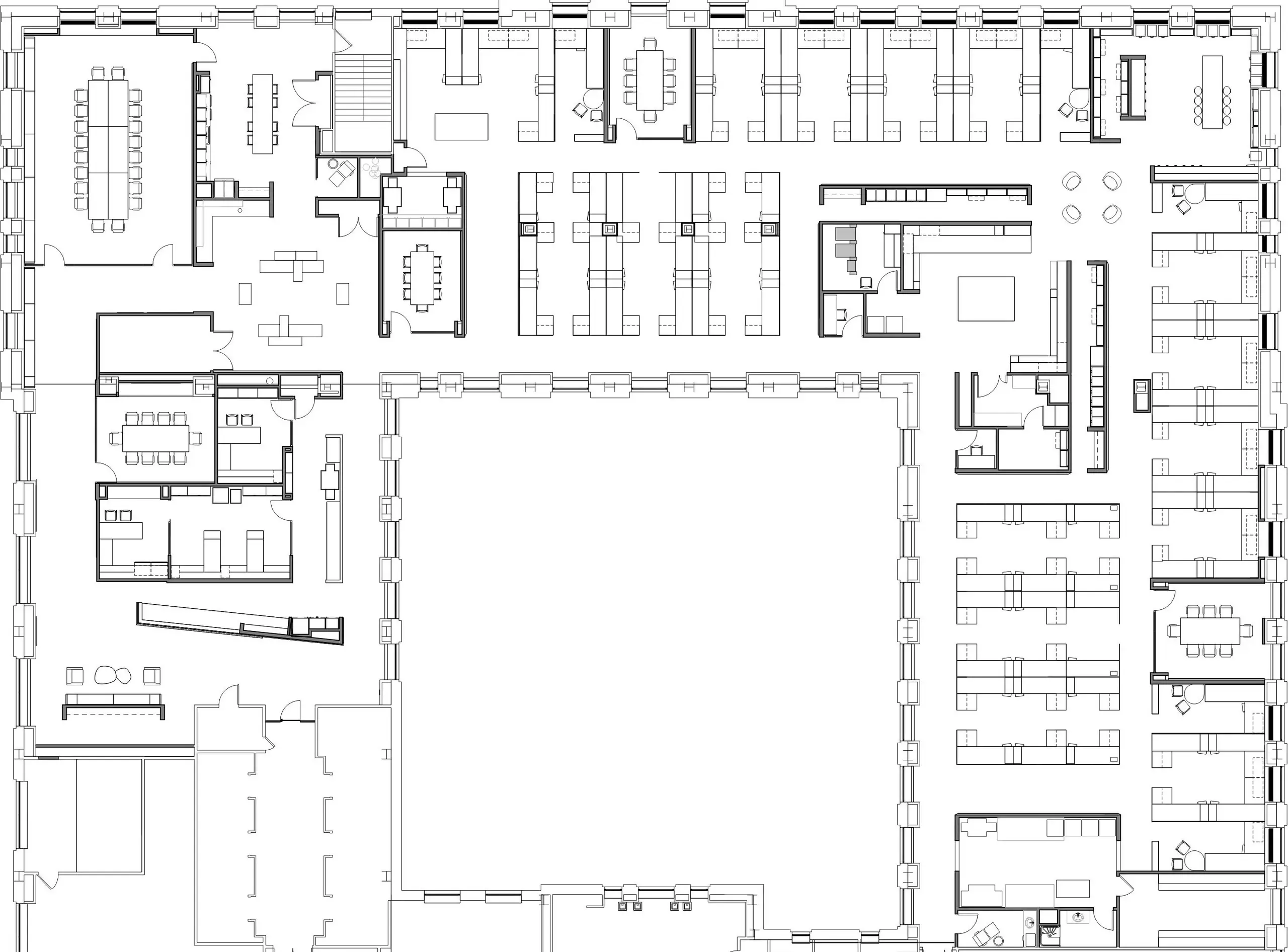
New ARC Office Suite
Image
New ARC Office Suite

Stay tuned as we share updates throughout the year, from design concepts to the October move-in day. Together, we’re creating space—for evolving identity, creative growth, and for the workplace future.

Inside ARC from Create Space | For Evolving Identity.