A Gateway: Not Just a Concept.

Research & Exploration from

In 2007, Providence, RI made a bold move to relocate interstate I-195 that had cut off vital areas of their vibrant city from its core since the 1950s. As an abutter to the former highway, the university recognized that the reclaimed land offered significant opportunities for the growth of their Providence campus, coincidently providing a site for a new interdisciplinary STEAM facility that would act as gateway to a new part of JWU’s down city campus. While having the qualities a gateway moment by consequence of being a site situated at the edge of campus, this project took on the concept of gateway in much more intentional ways.

Image
JWU Gateway

Paired with this urban approach, the school wanted to raise the profile of these small programs that had historically occupied found spaces on campus. By conceiving this building as a hub for these programs a type of interdisciplinary learning approach was paired with a “science on display” concept to create a vibrant center for learning. This then back informed how the programs in the building faced the public realm. Design spaces became galleries and engineering workshops had storefront exposures. This building became a clear expression of the commitment the school had to growing these burgeoning programs in a clear and intentional manner. 

Image
JWU Bowen
Image
JWU Bowen

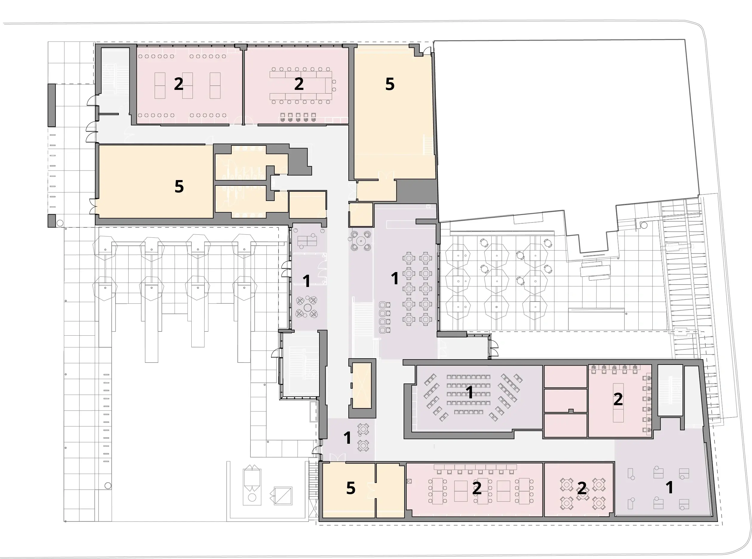
The siting of this new 71,000 SF STEAM building has many layers of meaning. While anchoring an important corner of the reconnected Down City neighborhood, the building also provided an opportunity to inform the masterplan for the future development of the campus. By splitting the building into East and West wings joined by a central hub, the building presents itself as a true gateway.  The central hub, featuring a café and social spaces, provides a catalyst for intellectual cross pollination within, allowing for interdisciplinary collaboration between designers, engineers, and scientists but also acts as an urban threshold that once crossed gains access to the future extended campus. Connected to the hub, a lively outdoor meeting space has been created in Providence’s tradition of intimate pocket parks. 

Image
JWU Gateway
Image
A Gateway: Not just in concept

To fully reinforce this concept of gateway, a pocket park was created that blurs the line between public and semipublic space, and furthermore, student space. Pocket parks are an urban highlight that comes from the human scale fabric of Providence. This type of urban space can be found in the surrounding area and is a language that means something specific to the residents of Providence. By including this type of space in this project, the project goes a long way to honor its place in the urban fabric and gives back to the public graciously. It is made physically clear that this is the intention by placing an open trellis at the property line that signals to students and public alike that while you are crossing a threshold, that this space is made for everyone to share equally. Right away this space was full of activity, which drew students from across campus, students from other schools, and business’ that saw these spaces as an urban attractor. 

In the end, a well-conceived plan and site plan can have greater impact that reaches beyond its property lines and can be seen not only as a good neighbor but a positive contribution to the neighborhood. 

Image
JWU Bowen
Image
JWU Bowen
Research & Exploration from A Gateway: Not Just a Concept.