Lines on Paper

Research & Exploration from

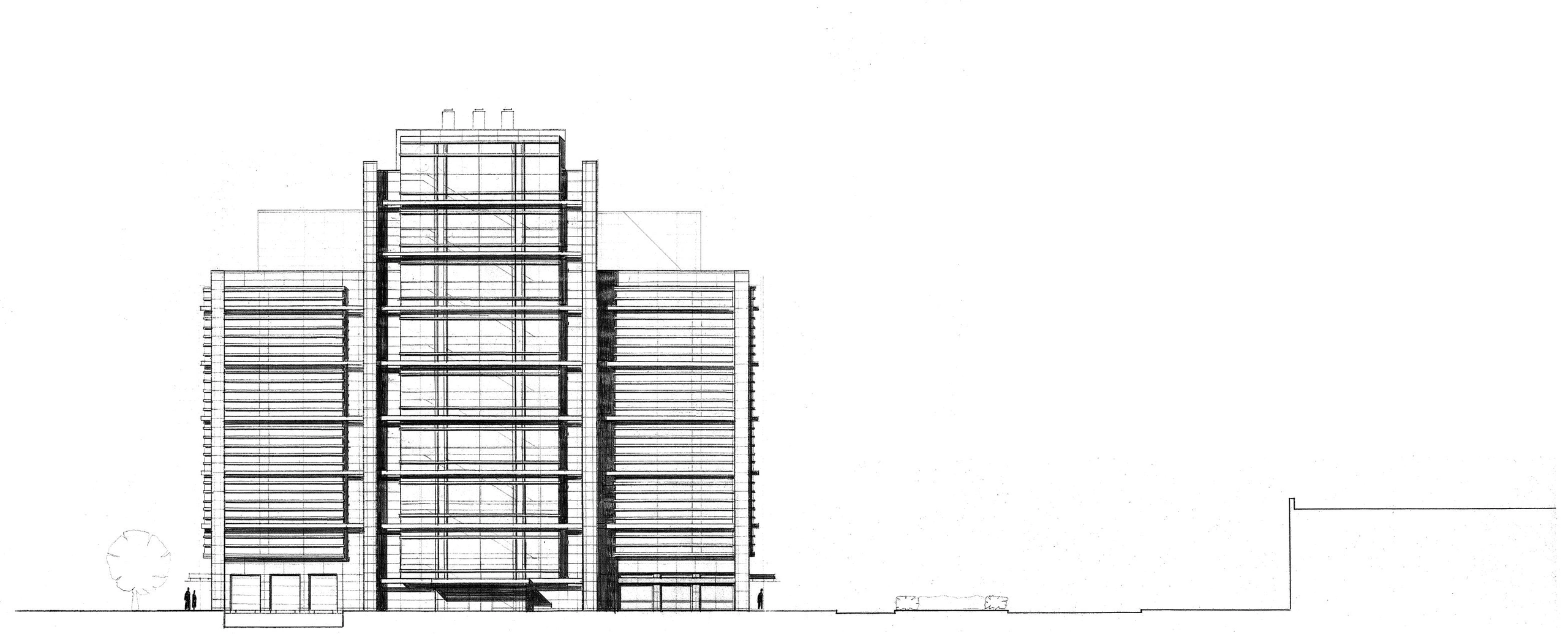
Digital modeling of buildings is now the standard not only for exploring architectural form but for documenting and testing our buildings as well. That said, the connection from hand to brain still has power just as it did before we had powerful modeling software. Below are examples of of hand-crafted façade studies.  

test caption
Image
nya combined Page 008
Image
nya combined Page 003
Image
nya combined Page 007
Image
nya combined Page 009

The act of building a study like this is both an act of rigor and of abstraction. The learning one does when constructing the framework for a drawing like this locks in the parameters of the problem in a way that quick digital modeling does not, and the layering of shadow onto these frameworks forces ones brain to be hyper-intentional about how the building is intended to feel in three dimensions.

These studies resulted in very intentional choices about the depth and qualities of the physical façade element to produce the kinds of visual texture desired in these drawings. In the end, the façade did achieve the intended goals, and all of that from mere lines on paper.

Image
HORNER_ARC_07144_087S
Research & Exploration from Lines on Paper